Wir hatten auf der prima mit drei Personen eine barrierefreie Kabine und auch auf der blu. Bis auf die normalen Geräusche keine Probleme. Wir haben eine barrierefreie aussenkabine und nur auf der Bella fand ich die etwas lauter.
barrierefreie Kabinen mit 3 Personen
-
sameda -
4. Juni 2017 um 14:41 -
Erledigt
Hinweis
Du bist aktuell nur als Gast in unserem Forum. Melde dich an oder registriere dich, um Antworten zu können.
-
-
- RE: barrierefreie Kabinen mit 3 Personen
Schau mal hier
-
enigma, das Knarren hatten wir auch bei Seegang, wie in einem Geisterhaus meinten die Kinder....
War einschläfernd da monoton
Klogeräusche aber stelle ich mir vor wenn laut dass man davon aufwacht... -
Ja, aber die gab es in der barrierefreien nicht.
Nur die knarzenden Geräusche direkt neben dem Kopf und in den anderen Wänden auch.
Ab der 3. Nacht habe ich die nicht mehr bewusst wahrgenommen.
-
Unsere Kabine (4122) auf unserer Kanaren Kreuzfahrt mit der Aida Bella
[Blockierte Grafik: http://up.picr.de/31647356sv.jpg]
[Blockierte Grafik: http://up.picr.de/31647357ln.jpg]
[Blockierte Grafik: http://up.picr.de/31647358kt.jpg]
-
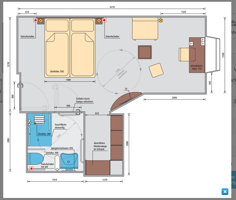
DANKE - und die dritte Person dann quasi vor dem Schreibtisch ?
Das sieht für mich dann extrem eng aus, da bin ich ja gespannt wie das mit Rolli klappt
( bin von der Prima halt verwöhnt) -
Die Prima kenne ich nicht, darum kann ich keinen Vergleich ziehen. Aber eng ist es eigentlich nicht, wenn man bedenkt, das man immer noch auf einem Schiff ist.
[Blockierte Grafik: https://picload.org/thumbnail/ddpdccli/124245_grundrisse_behindertenf.jpg]
-
Eng ist imemr relativ aber wenn da das dritte Bett steht
hast Du da noch die Wendekreise und kommst überall hin ?
Der Kleiderschrank sieht klasse aus - das hattenw ir auf der prima nicht aber ein riesen Bad -
das war unsere Prima Kabine... zum Vergleich vom Platz her
-
Ist diese Kabine für (bis zu) 4 Personen gedacht? Ich meine wegen dem Klappbett.
-
huhu
ja, da kann man zu viert in die Balkonkabine, ich glaube sonst hat Aida das nicht !
Ohne oben das Pullmannbeett ist es zu dritt sonst zu viert,
wirklich riesig -
ich finde es schade dass diese Möglichkeiten erst auf den ganz neuen großen Schiffen bestehen
es haben ja auch viele behinderte Kinder oder aber behinderte Eltern wollen mit Kindern reisen.
Fjorde hätten wir auch gerne mit zwei Kindern gemacht aber es gibt keine Kabinen zu viert
und zwei Kabinen können wir uns leider nicht leisten.Wir waren zu viert in der Kabine und hatten wirklich sehr viel Platz
einziges Problem war die Aufzugsituation, es gab selten freie Aufzüge -
die sol ist ja kleiner, ist es da entspannter ?
(Auf der Mein Schiff waren wir ja kinderlos aber da war dieses Problem nicht) -
Jetzt haben wir eine Antwort erhalten, die mir aber nicht geällt:
"Gerne habenwir recherchiert und können Ihnen mitteilen,dass es vereinzelt zu Geräuschen ausdiversen Gründen in der Kabine 4222 kommen kann.
Aktuell sindnoch zwei alternative Kabinen verfügbar ( 4134 und 4234 ), auf die Siekostenfrei umbuchen können. "
die anderen zwei sind viel kleiner und nicht zu dritt geeignet - na klasse - also können wir uns nun schon auf Krach einstellen was die Vorfreude deutlich schmälert -
Hat jemand aktuelle Erfahrungen auf der bella mit der 4222 ?
Wenn das dritte Bett ein Sofabett ist, kann man darauf wirklich schlafen oder ist das so schmal dass man runterkullert oder nach 4 Tagen Kreuzweh hat ? Wie das ausgeklappt aussieht oder die masse kann ich nicht erkennen aber da es für Erwachsene buchbar ist sollte das ja groß genug sein und nicht nur 1,80 lang und 70 breit...
Wie habt Ihr das platztechnisch mit den Koffern gelöst, passen da drei unters Bett ?
Wir reisen nach Norden und tendern auch, sprich wir überlegen ob wir den Klapprolli zusätzlich mitnehmen aber der ist nicht zur Dauernutzung angepasst
-
Von der Breite siehts ja so aus als ob es die Hälfte vom Doppelbett ist, also 90cm und Länge sicher 190 mindestens.
Die 3D Panorama Ansicht auf der AIDA Seite sieht auch so aus. Ich weiß ja nicht wie klein der zugeklappte Rolli ist aber es gibt ja in der Kabine so einige Ecken wo der eventuell hin passt. Rechts und links vom Schreibtisch ist auch Platz so wie es aussieht. Und auf dem Bild auch links vom Bett. Und Koffer kann man ja auch längs in den Kleiderschrank unten stellen
Gruß Charlynn
-
ICH hoffe mal, den Grundriss habe ich auch schon oft angeschaut aber ob man das wirklich so massstabsgetreu sehen kann weiss ich leider nicht.
Hier scheint die Kabine keiner gehabt zu haben
-
Ist sie Das nicht, Ellert?
4222 (Barrierefrei). Hatte doch schon jemand...
-
Hier hab ich noch von der Luna eine Bewertung gefunden, sind ja baugleich
https://rollstuhl-reise-ratgeber.de/kreuzfahrten/s…egischen-fjorde
Da wird die Kabine ausführlich beschrieben und bewertet mit Fotos.
-
doch halt schon arg alt - ich HOFFE ja dass nachdem ich oft das Geräuschproblem gelesen habe, sie das irgendwann isoliert haben, aber Neues finde ich halt leider nicht.
Sind die wirklich exakt baugleich ?
-
Die sind exakt baugleich, dennoch hat man, was Knarrgeräusche angeht, von Schiff zu Schiff schon Abweichungen.
-
Mit Knarren hatte ich auf der Prima keine Probleme, es ging um diesen Schacht der wohl extrem laut sein soll und durch die Kabinen geht die rolligerecht sind.
-
Ich glaube ehrlich gesagt nicht, dass da nachträglich was isoliert wurde, um Geräusche zu dämmen. Das würde ich zum ersten Mal hören, dass Aida Maßnahmen bei geräuschintensiven Kabinen einleitet

-
Unsere Top 5 Kreuzfahrt Empfehlungen für Euch
-
- Thema
- Antworten
- Letzte Antwort
-
-

-
Meer fürs Geld: Jetzt wird's günstig auf See
- Katharina seereisen.de
17. April 2026 um 12:34 - Angebote seereisen.de
- Katharina seereisen.de
17. April 2026 um 12:34
-
- Antworten
- 0
- Zugriffe
- 1,6k
-
-
-

-
🌴 AIDA Winterdeal: WLAN gratis auf Fernreisen
- Tino seereisen.de
16. April 2026 um 17:35 - Angebote seereisen.de
- Tino seereisen.de
16. April 2026 um 17:35
-
- Antworten
- 0
- Zugriffe
- 515
-
-
-

-
Wer liebt auch Balkonkabinen? Neue Mein Schiff Deals sind da
- Katharina seereisen.de
14. April 2026 um 13:45 - Angebote seereisen.de
- Katharina seereisen.de
14. April 2026 um 13:45
-
- Antworten
- 0
- Zugriffe
- 908
-
-
-

-
Mein Schiff Wochenend-Angebote – bis zu 400 € pro Kabine sparen
- Katharina seereisen.de
10. April 2026 um 09:30 - Angebote seereisen.de
- Katharina seereisen.de
10. April 2026 um 09:30
-
- Antworten
- 0
- Zugriffe
- 1k
-
-
-

-
AIDAprima Winter 26/27 jetzt buchbar – ab 19.12. mit Eislaufbahn ⛸️
- Katharina seereisen.de
9. April 2026 um 17:15 - Angebote seereisen.de
- Katharina seereisen.de
9. April 2026 um 17:15
-
- Antworten
- 0
- Zugriffe
- 833
-